Eladó családi ház Bodrogkeresztúr 120 000 000 Ft

Leírás

Eladó egy modern, esztétikus családi ház Tokaj környékének egyik leghangulatosabb
részén.
A 2024-ben épült, kifinomult megjelenésű ingatlan már megkapta a lakhatási engedélyt, és kellemes krémszínű homlokzatával harmonikusan illeszkedik a természetes környezethez.

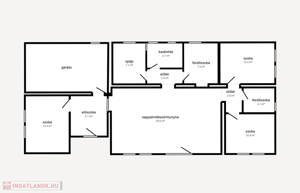
A 159 m²-es, világos és tágas lakótér időtálló eleganciát és otthonos hangulatot áraszt. A hozzá tartozó 1900 m²-es, parkosítható telek pihenésre és kültéri kikapcsolódásra egyaránt kiváló.

Főbb jellemzők: • 3 kényelmes, napfényes hálószoba • 2 stílusos, jól felszerelt fürdőszoba • Gázkazánnal működő padlófűtés az egész házban • Fűtött garázs közvetlen lakótérkapcsolattal • Küszöbmentes, akadálymentes kialakítás • Kelet–nyugati fekvés – egész nap világos • Elegáns, fa hatású műanyag nyílászárók • Porotherm falazat, Bramac tető, 10 cm-es szigetelés • Modern kerítés, a telek teljesen körbekerített • Virtuális séta elérhető: Matterport link

Ez az ingatlan nem csupán egy épület — ez egy kiegyensúlyozott, békés élettér, ahol a minőség, stílus és funkcionalitás kéz a kézben jár. Ritka alkalom ilyen szinten felszerelt új építésű otthonra Tokaj vonzáskörzetében!

Családi ház részletei

Ár: 120 000 000 Ft
Méret: 158 négyzetméter
Azonosító: 11613477
Irodai azonosító: 327277
Telek: 1900 négyzetméter
Ingatlan állapota:
Jelleg: családi ház
Építőanyag: Tégla
Fűtés jellege: Egyéb
Fűtés módja: Gáz
Komfort fokozat: Összkomfort
Egész szobák: 3

Egyéb jellemzők

  • Garázs
  • Terasz