Eladó családi ház Háromhuta 42 900 000 Ft

Leírás


Van az a ház, amit vagy azonnal megszeret az ember… vagy továbbáll. Ez az óhutai ingatlan pontosan ilyen. Egy meredek domboldalon áll, ahonnan a Zemplén vadregényes tája szinte bekúszik az ablakokon. A két bejárat lehetőséget ad külön lakrészek kialakítására, vendégek fogadására vagy akár két generáció kényelmes együttélésére.
Ez nem egy sablonos ház. Ez egy választás – természetközeli élet, tágas terek, és egy olyan hangulat, amit nem lehet számokkal leírni. Aki belép, vagy beleszeret… vagy soha nem felejti el.

Befektetők figyelem!
Az ingatlan adottságai lehetővé teszik vendégház, apartman vagy akár több lakrészes kiadó egység kialakítását. A két bejárat, a hat hálószoba és három fürdőszoba rugalmas belső elrendezést tesz lehetővé. A környék természeti értékei miatt turisztikai célú hasznosításra is kiváló alap.

Tágas családi otthon a Zemplén ölelésében – 6 hálószobás ház Óhután, két garázzsal és teraszokkal
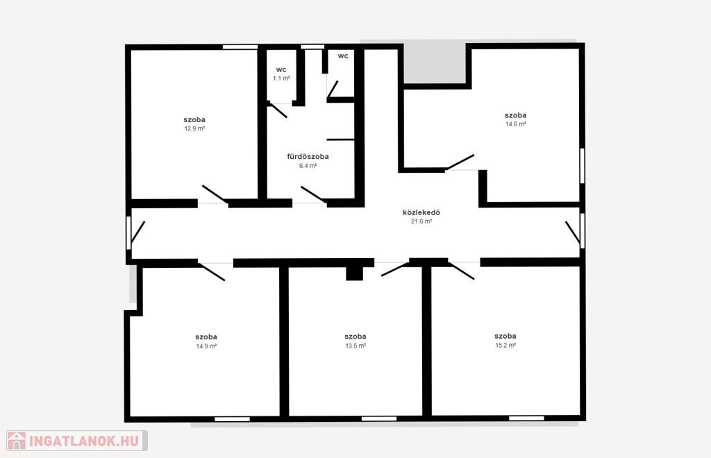
Az 1980-ban épült ingatlan közel 140 m²-es lakóteret és 2175 m²-es telket kínál, ideális nagycsaládosoknak, vendégháznak vagy többgenerációs otthonnak.
A házban 6 hálószoba és 3 fürdőszoba található – egy a földszinten, kettő az emeleten, köztük egy dupla fürdő. A tetőt Bramac cserép fedi, a hőszigetelt fa nyílászárók pedig hozzájárulnak az energiatakarékossághoz.
A központi fűtés kétféle megoldással működik: gáztartályos rendszerrel és fa tüzelésű kazánnal, így a fűtés rugalmasan szabályozható. Az udvaron két garázs is található, ami praktikus tárolási lehetőséget biztosít.
A belső terek parkettásak, a burkolatok felületileg jó állapotúak, de a parketta csiszolása és frissítése esztétikailag ajánlott. A házhoz két terasz és egy erkély tartozik, ahonnan a zempléni táj nyugalma és szépsége minden nap élvezhető.

Elhelyezkedés: Óhuta – természetvédelmi terület közelében, túraútvonalak mentén

Lakótér: kb. 140 m²

Telek: kb. 2175m²

Szobák száma: 6 háló, 3 fürdő

Bejáratok: 2 külön bejárat

Fűtés: központi fűtés gáztartályról + fa tüzelésű kazán Garázs: 2 különálló garázs az udvaron
Extrák: 2 terasz, 1 erkély, Bramac tető, hőszigetelt fa nyílászárók, parkettás burkolat (csiszolásra vár)

Családi ház részletei

Ár: 42 900 000 Ft
Méret: 140 négyzetméter
Azonosító: 11573596
Irodai azonosító: 344036
Telek: 2175 négyzetméter
Ingatlan állapota: Átlagos
Jelleg: családi ház
Építőanyag: Tégla
Fűtés jellege: Egyéb
Fűtés módja: Gáz
Komfort fokozat: Összkomfort
Egész szobák: 6

Egyéb jellemzők

  • Terasz