Eladó családi ház Tarcal 9 300 000 Ft

Leírás

Otthon, ahol a nyugalom és a lehetőségek találkoznak – családi ház Tarcalon, nagy telekkel
Tarcal egyik csendes, mégis jól megközelíthető részén kínálunk eladásra egy 92,96 m²-es, szilikátblokkból épült családi házat, amely egy 1500 m²-es saroktelken fekszik. Az ingatlan stabil szerkezetű, cseréptetővel fedett, részben műanyag nyílászárókkal felszerelt, és a tetőtér irányába tovább bővíthető – így akár több generáció számára is ideális otthon lehet.
További jellemzők:
• Eredetileg két bejárattal rendelkezett, jelenleg egy aktív bejárat van
• PVC és járólap burkolatok, könnyen tisztán tartható felületek
• Utcára és udvarra néző kilátás, keleti és nyugati tájolás
• Gázfűtés + alternatív fűtési lehetőség
• 1 állásos garázs,
• 5 m²-es terasz – tökéletes reggeli kávézáshoz vagy esti borozáshoz
• Alacsony rezsiköltség, összkomfortos kialakítás
• CSOK Plusz támogatásra alkalmas
A tágas telek lehetőséget kínál kertészkedésre, játszótér kialakítására vagy akár egy kis konyhakert létrehozására. A saroktelek adottságai miatt akár vállalkozásra is alkalmas lehet – külön bejárat kialakítása könnyedén megoldható.
Tarcal a Tokaji borvidék szívében fekszik, így a környék nemcsak természeti szépségeiről, hanem kulturális és gasztronómiai értékeiről is ismert. A belváros közelsége, a jó infrastruktúra és a fejlesztési lehetőségek mind növelik az ingatlan értékét.
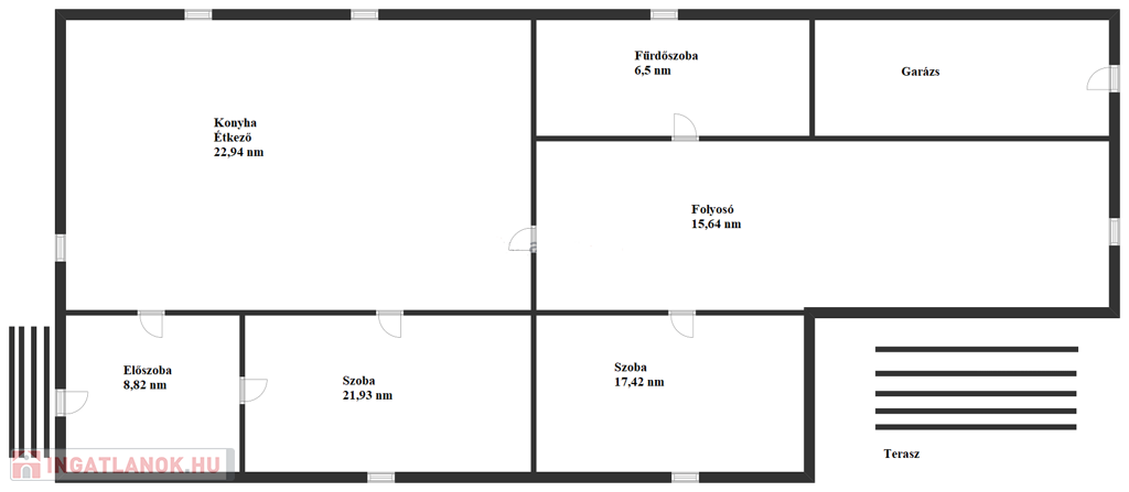
Helyiségek méretei:
• Előtér: 8,82 m²
• Konyha + étkező: 22,94 m²
• Szoba 1: 21,93 m²
• Szoba 2: 17,41 m²
• Folyosó: 15,64 m²
• Fürdőszoba (WC-vel egy helyiségben): 6,15 m²

Családi ház részletei

Ár: 9 300 000 Ft
Méret: 92 négyzetméter
Azonosító: 11613448
Irodai azonosító: 341659
Telek: 1500 négyzetméter
Ingatlan állapota: Átlagos
Jelleg: családi ház
Építőanyag: Kérdezzen rá a hirdetőtől »
Fűtés jellege: Egyéb
Fűtés módja: Gáz
Komfort fokozat: Összkomfort
Egész szobák: 2

Egyéb jellemzők

  • Garázs
  • Terasz